APARTAMENT 2+1+2 NE SHITJE, LAKE VIEW.

  • €225,000
Liqeni Artificial, Tiranë
Tërhequr

APARTAMENT 2+1+2 NE SHITJE, LAKE VIEW.

Liqeni Artificial, Tiranë
  • €225,000

Vështrim i përgjithshëm

  • 2
  • Dhoma
  • 2
  • Tualete
  • 120
  • Sipërfaqe ㎡
  • P34105
  • ID Prones

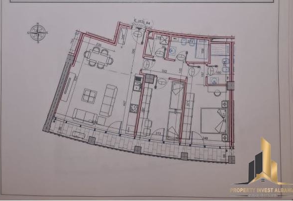
Përshkrim

Shesim super apartament 2+1+2 tek rezidenca me afer Liqenit te Tiranes, Lake View.

Apartamenti ka siperfaqe 120 m2 dhe ndodhet ne katin e 3.

Orientimi Jug.

Organizohet ne dhome ndenje , kuzhine, 2 dhoma gjumi, 2 tualete, depo dhe ballkon.

Cmimi eshte 225000 euro.

Per me shume na kontaktoni.

Informacion Kontakti

Shiko Listimet

Pyesni për këtë pronë

(Required)
This field is for validation purposes and should be left unchanged.

Listime të ngjashme

Compare listings

Compare
Konsulent
  • Konsulent